这是一个135平米的四室两厅,主人喜欢典雅的中式,借用传统中式园林设计的个别手法,少了几分浓墨重彩,多几分雅致清宁,透过山水画中的写意笔触,勾勒出空间的气韵。
玄 关

进门玄关的位置之前其实是一个入户花园,不算在正式房间内。地面铺装是鹅卵石瓷砖与青石砖的结合,方便打理同时又有一些户外庭院的感觉。

利用中式庭院的手法做了一点透景的设计。
进门就可以看到一点点走廊和客厅,整体错落有致,不像一般的户型一望见底。
客 厅
客厅悬浮式极简的电视背景墙,加入了一些文化石的元素,摒弃了一般传统中式电视背景的设计。

采用传统形式的圈椅和改良版罗汉床榻,点缀很年青的青蓝色和鹅黄色,体现整体富有文华底蕴却不老成的感觉。
傍晚开灯效果。
从客厅看到门庭,换鞋凳上的画为业主学生手绘。非常有纪念意义。
餐 厅
餐厅延续整体风格,设置的六人位。
书 房
L型大阳台的一半用来做书房,不仅采光一流,同时布局也非常适合。
一进门的右手边就能来到主人最熟悉的书房,也是他最常呆的地方。
利用园林的造景手法做了一点设计,使得两面看上去都自成风景。
走 廊

走廊主要是做了一些衔接设计,采光一般,所以用的是筒灯没有用吊灯,并用装饰画作为点缀。
主 卧


花鸟壁纸+符合整体色系的家具。主卧床为软包床,体现活泼的禅意氛围。

老 人 房
采用墨绿色软包背景,搭配木床。老人房设计稍微偏素雅一点,但还是接近整体设计。其中有一部分空间为原来的阳台空间纳入,所以顶面做了一些吊顶处理。
儿 童 房
由于是两个小朋友在一间房,所以儿童房的储物和功能性成为了最重要的内容。必须满足睡觉,衣柜,玩具及书柜陈列,作业等多项功能。
阳 台
在书房和大阳台之间还做了一个折叠门,实际功能并不强,主要是平时作为空间分隔来使用,客厅的圈椅组合有时候也可以临时退后到阳台上作为喝茶晒太阳的利器。

大阳台采光也是相当不错。
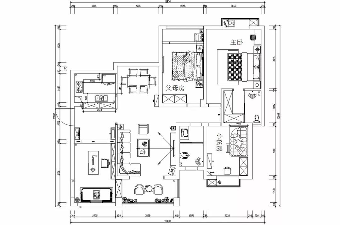
平面图:
