点标签看更多好帖

客厅餐厅卧室

  • 7275阅读
  • 1回复

[干货推荐]105平米现代简约,温馨优雅的搭配

[复制链接]
上一主题 下一主题
微信分享→
离线my dream
 
发帖
42
港币
25
威望
42
来自
张家港
人生阶段
单身
职业
企业员工
只看楼主 倒序阅读 楼主  发表于: 2018-03-28
— 本帖被 王小超 从 装修干货 移动到本区(2019-07-24) —


一套105平米的二房,以独特大方的格局,在温馨优雅的现代时尚空间搭配下,打造出一个惬意轻松的小两口之家。


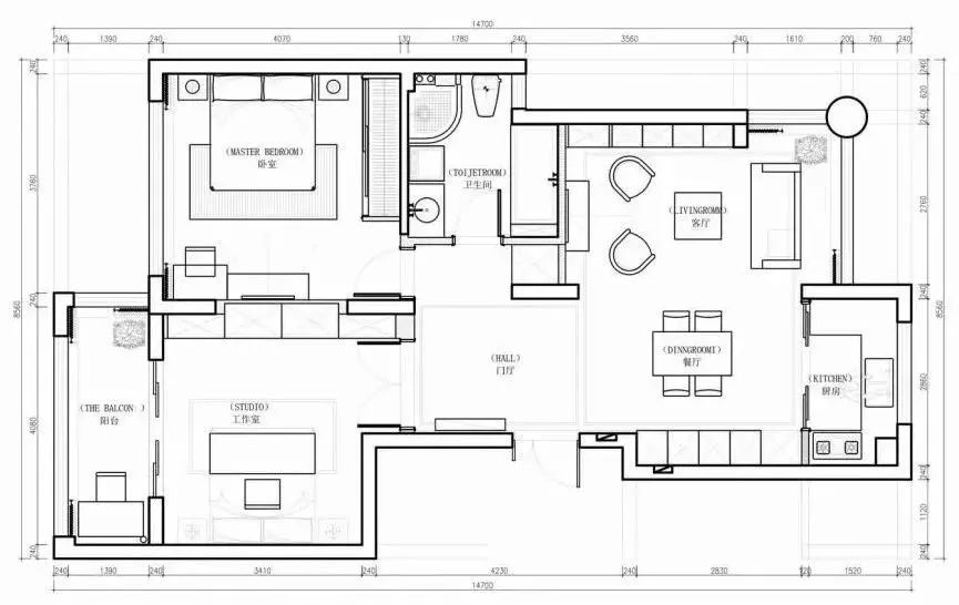
平面布置图



玄关



进门处以简洁的空间,一张成品的酒杯凳作为换鞋凳,后方的墙面挂上一面全身镜可供主人出门前的梳妆打扮,一旁的端景台与上方的一幅黑白配的世界地图装饰画,也为空间带来了几分的优雅时尚气息。


餐厅


▲餐厅采用抛光砖地面,靠墙一张餐边柜,在硬装方面显得格外的时尚端庄;搭配一张独特的异形吊灯,实木餐桌椅,整个空间给人以自然大方的氛围感。




餐边柜上方的墙面挂了一组的装饰画,旁边留出一个位置刚好摆放冰箱,看似紧凑的布局却也显得实用舒适。


厨房



厨房有着较大面积的窗户,洗手盆这一排的台面都是临窗的,为整个厨房空间带来了丰富的采光,让厨房保持干爽卫生,看到这样的厨房,做饭的心情都好了不少。



茶室



茶室的空间充满了禅意的气息,背景墙上的水墨意境山水画,还有一套禅意端庄的桌椅,台面上清新禅意的绿植与茶具,整个空间充满了韵味的氛围感。



客厅



客厅的蓝色布艺沙发,因地制宜地摆在窗前,同时取消了电视机在吊顶上方装一个投影仪,在周末的时候小两口可以拉上窗帘,坐在这张舒适的沙发上看一场电影。




电视墙在吊顶上藏了一张用于投影的幕布,侧边则是一个收纳柜+展示柜的组合,摆上书籍与摆饰品,整体显得儒雅而端庄。




▲艳黄的跳舞兰插花,搭配斑马纹的电视柜门,还有一张米黄的地毯,整体显得格外的优雅舒适。


卧室



卧室的床头背景墙以深灰色为主,木色地板、床与床头柜,整个空间充满了简洁舒适的气息。




床头柜上这盏球形的台灯,充满了艺术感。



床尾位置也摆了一张小书桌,可以满足主人偶尔在家办公加班的使用需求。


卫生间



卫生间的黑色洗手盆柜,搭配上大理石台面、灰色的地砖与白色墙砖,整个空间都现代而大方时尚。



离线traveler
发帖
133
港币
44
威望
179
来自
人生阶段
单身
职业
企业员工
只看该作者 沙发  发表于: 2018-03-29
餐厅灯乍一看以为电风扇。。。
 
回复标题限100 字节 提到某人:
选择好友